0
Nouveauté

Grand appartement petite surface à vendre à Noisy-Le-Grand

Noisy-le-Grand (93160)
Réf : 2616

Ce bien est vendu occupé par un locataire qui paie régulièrement ses loyers.

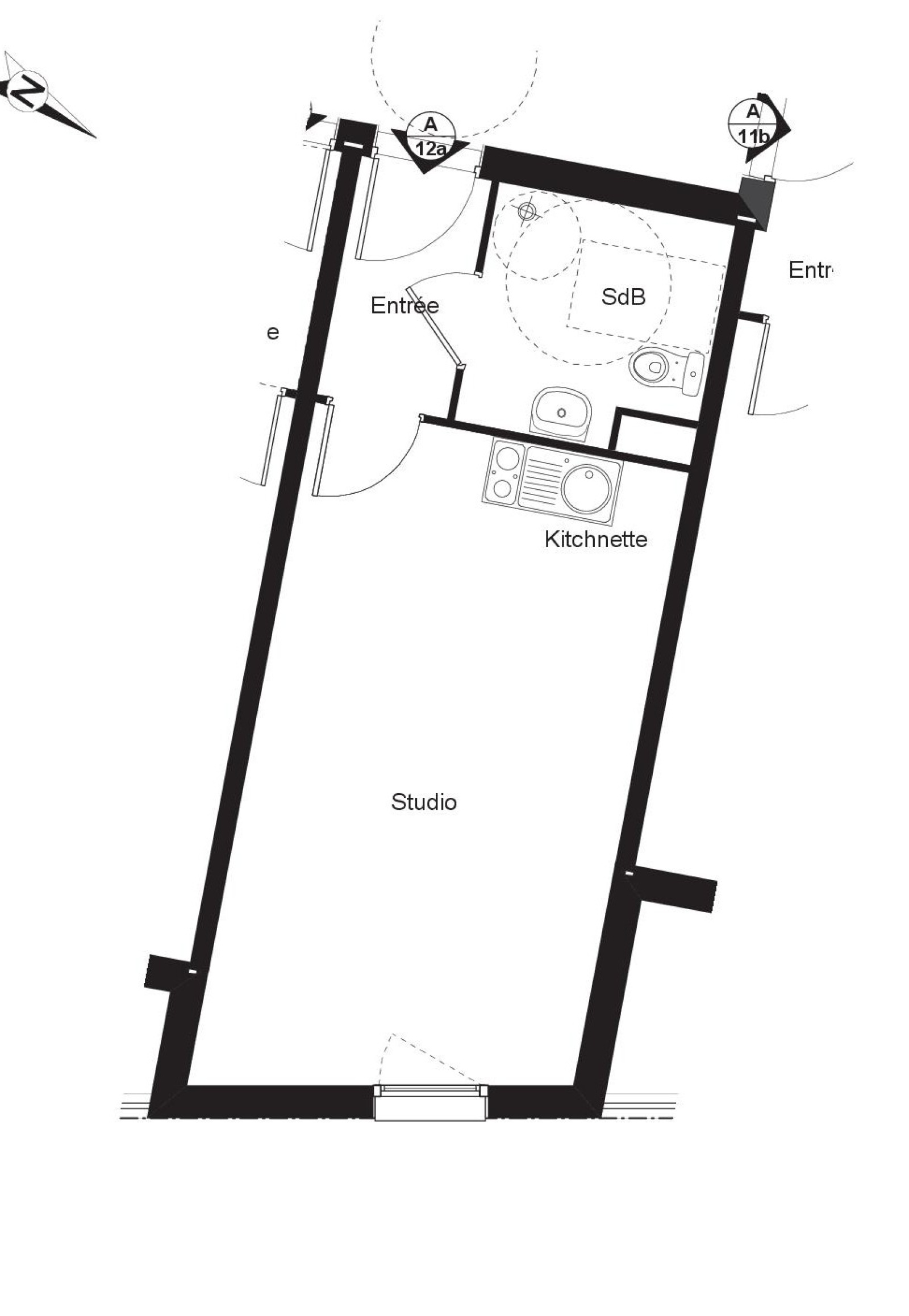
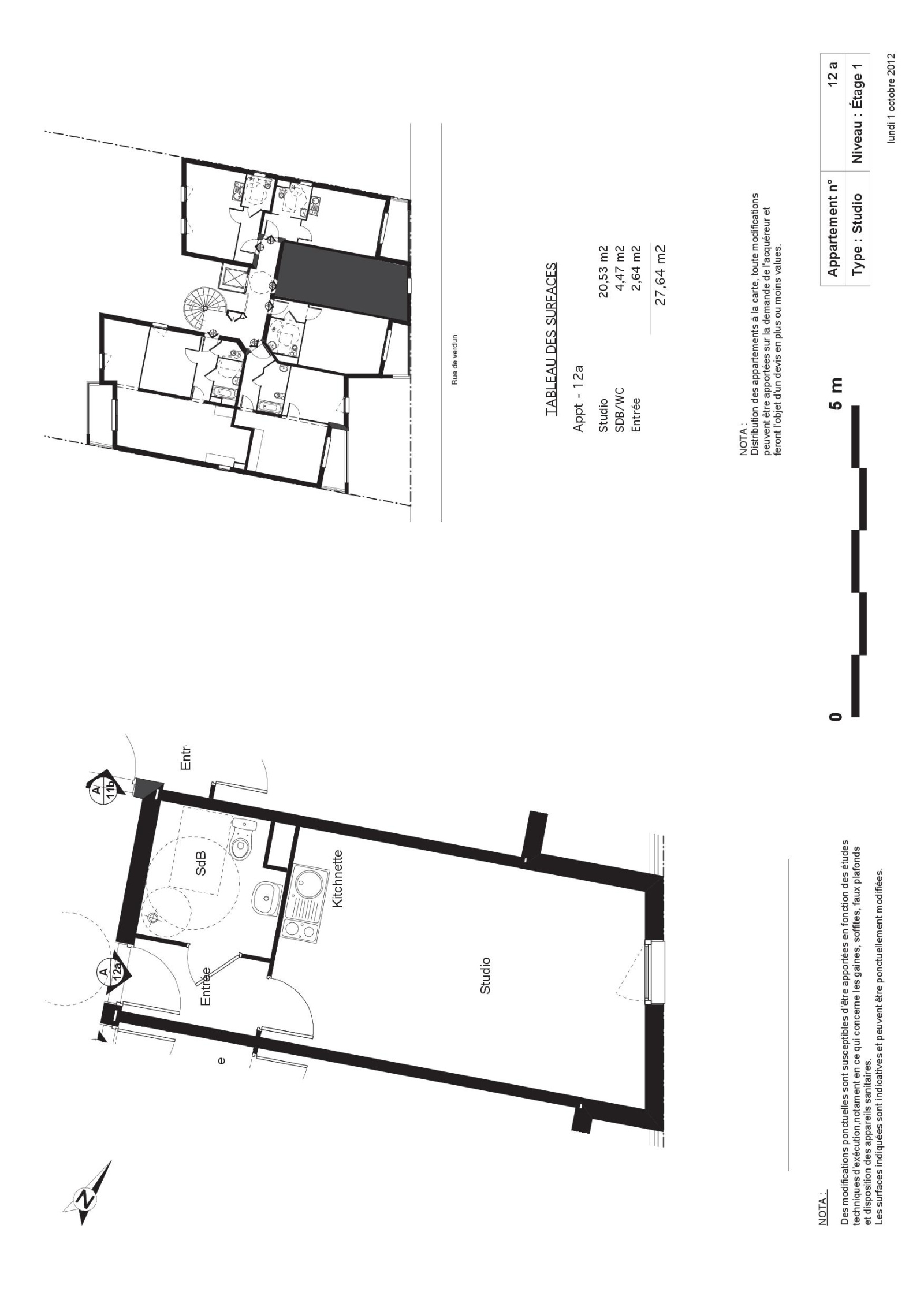
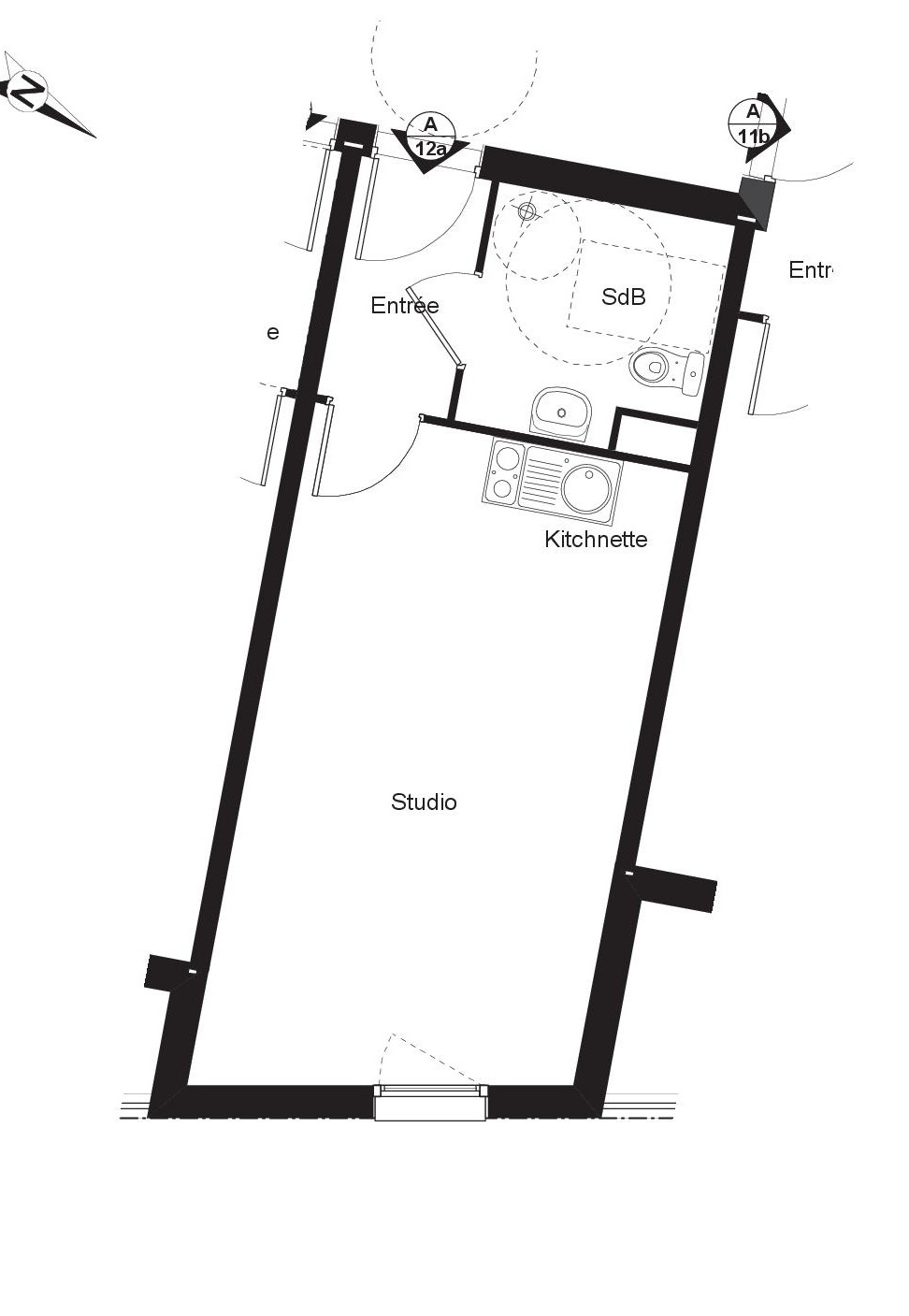
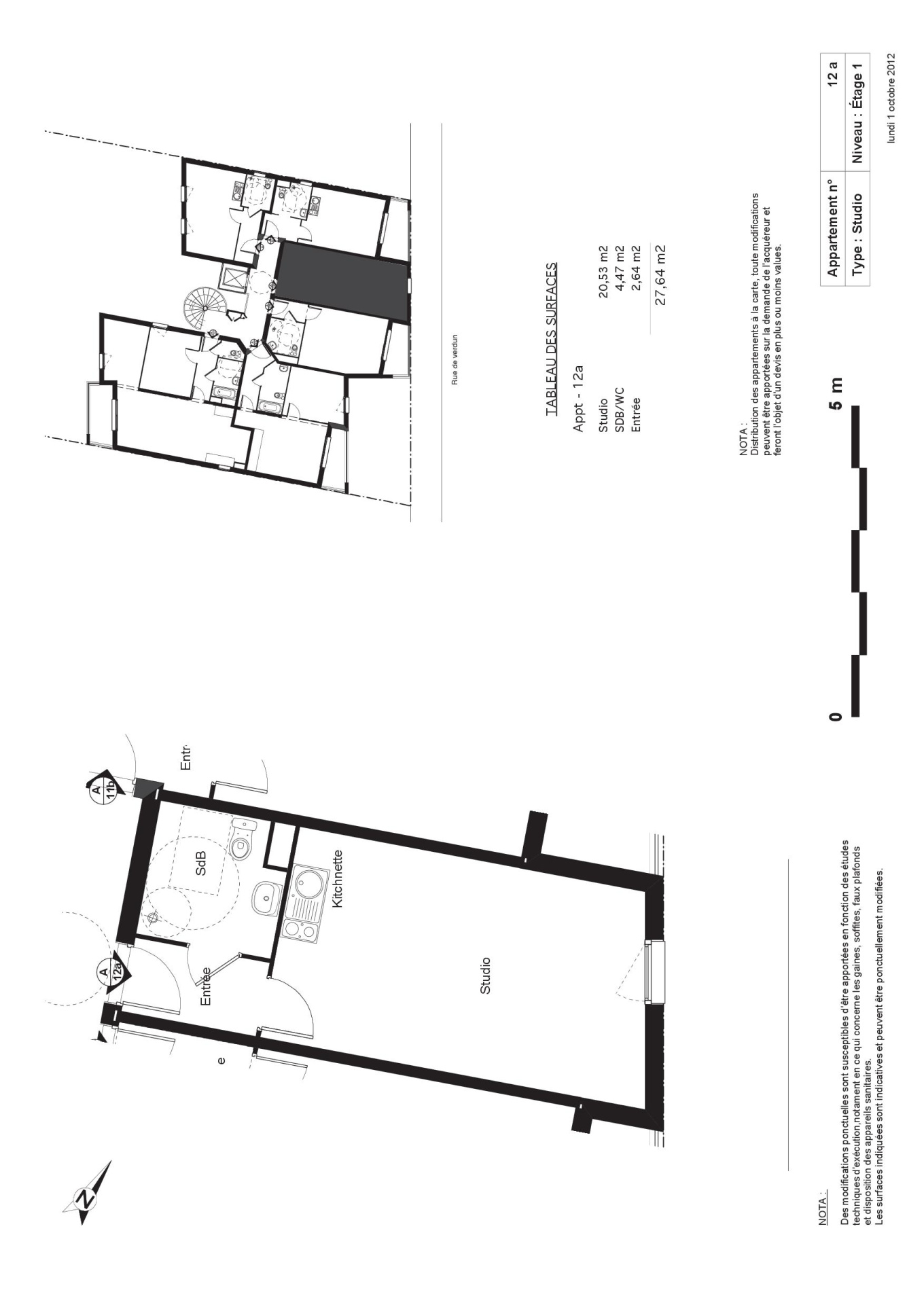
Acquisition immobilière d'un studio sur la ville de NOISY LE GRAND près de Paris. Le bâtiment est conforme aux normes d'accessibilité PMR. L'agence immobilière ACP IMMO se fera un plaisir de vous aider si vous voulez plus d'informations ou avez besoin d'aide dans votre recherche de logement. Une habitation intéressante à un prix avantageux pour une première résidence principale. L'intérieur se compose d'un coin salon de 19m², un espace cuisine et une salle de bain. Sa surface intérieure habitable développe environ 27.64m². Studio au 1er étage d'un bâtiment de 3 étages. Année de construction : 2012. Des fenêtres à double vitrage assurent la tranquillité des occupants. Consomme peu d'énergie, étant conforme aux critères du label de bâtiment à basse consommation qui garantit des économies d'énergie au quotidien. Le prix de vente s'élève à 165 000 €. Ce bien est vendu occupé par un locataire qui paie régulièrement ses loyers.


Les informations sur les risques auxquels ce bien est exposé sont disponibles sur le site Géorisques
Prix du bien 165 000 €
Pièce(s) 1

Caractéristiques du bien

Caractéristiques Valeurs
Code postal 93160
Surface habitable (m²) 27,64 m²
Nombre de pièces 1
Etage 1
Vue sur rue
Nb de salle de bains 1
Cuisine Kitchenette
Mode de chauffage Gaz
Type de chauffage TRAD_TYPE_CHAUFF_CHAUDIERE
Format de chauffage Individuel
Interphone OUI
Visiophone NON
Terrasse OUI
Cave NON
Exposition Est
Année de construction 2012
Quartier la varenne, proche de bry sur marne, quartier ultra privilegie

Infos financières

Caractéristiques Valeurs
Prix de vente honoraires TTC inclus 165 000 €
Charges 120 €
Taxe foncière annuelle 649 €

Bilans énergétiques

DPE GES
Ce bien vous intéresse ?
Fieldset par défaut
Fieldset par défaut
Validation

* Champs obligatoires

Contacter l'agence
Validation
Les informations recueillies sur ce formulaire sont enregistrées dans un fichier informatisé par La Boite Immo agissant comme Sous-traitant du traitement pour la gestion de la clientèle/prospects de l'Agence / du Réseau qui reste Responsable du Traitement de vos Données personnelles. La base légale du traitement repose sur l'intérêt légitime de l'Agence / du Réseau. Elles sont conservées jusqu'à demande de suppression et sont destinées à l'Agence / au Réseau. Conformément à la loi « informatique et libertés », vous disposez des droits d’accès, de rectification, d’effacement, d’opposition, de limitation et de portabilité de vos données. Vous pouvez retirer votre consentement à tout moment en contactant directement l’Agence / Le Réseau. Consultez le site https://cnil.fr/fr pour plus d’informations sur vos droits. Si vous estimez, après avoir contacté l'Agence / le Réseau, que vos droits « Informatique et Libertés » ne sont pas respectés, vous pouvez adresser une réclamation à la CNIL. Nous vous informons de l’existence de la liste d'opposition au démarchage téléphonique « Bloctel », sur laquelle vous pouvez vous inscrire ici : https://www.bloctel.gouv.fr Dans le cadre de la protection des Données personnelles, nous vous invitons à ne pas inscrire de Données sensibles dans le champ de saisie libre.
Ce site est protégé par reCAPTCHA, les Politiques de Confidentialité et les Conditions d'Utilisation de Google s'appliquent.
Ces biens peuvent vous intéresser